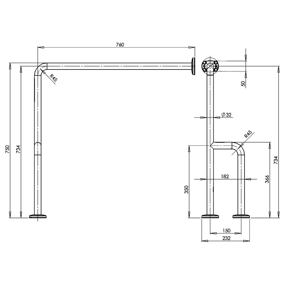
Поручень для инвалидов (угловой левый) устанавливется слева от раковины или унитаза. Отличное решение, чтобы помогать людям с нарушениями опорно-двигательного аппарата обходиться без посторонней помощи и обеспечивать необходимую поддержку при ходьбе, стоянии и сидении. Выполнен в антивандальном исполнении. Материал - нержавеющая сталь AISI 304 с сатинированной отделкой.
Главное преимущество -прочность, что позволяет его использовать при больших нагрузках. Рельефная поверхность предупреждает скольжение.
Крепление: Стена-пол. Стены должны быть несущими, при монтаже на гипсокартонную стену должны быть предусмотрены закладные элементы.
Места применения: медучреждения, санатории, дома престарелых, аэропорты, вокзал
- Страна производитель
- Испания
- Производитель
- Mediclinics
- Тип
- Поручень
- Материал
- Нержавеющая сталь сатинированная
- Высота
- 750 мм
- Глубина
- 232 мм
- Ширина
- 776 мм
- Тип поручня
- Угловой
- Цвет
- Металлик


